33 東京都文京区 O様邸
上質なくつろぎと子育ての安心
上質なくつろぎと子育ての安心
上質なインテリアで、まるでホテルのような落ち着きを感じられる空間を目指しました。室内は、随所に大容量の収納を設けることで、すっきりと美しく保てる設計に。さらに、小さなお子さまと一緒に快適に暮らせるよう、動線や間取りにも工夫を凝らしています。心安らぐ居心地のよさと、子育てのしやすさを両立した、理想のリノベーションを実現しました。


〔マンション〕 東京都文京区 O様邸
●工事面積/約118㎡ ●工期/約90日 ●間取り/2LDK ●築年月/1971年(築54年) ●費用/約2,000万円
リビング・ダイニング




和室をなくし、LDKを一つの大きな空間にしました。施主さまの希望された、広々とした居住空間を実現しています。



リビングの一角にお子さまのプレイスペースを作り、リビングと自然につながる空間にしています。扉は仕切りとして使え、急な来客のときに室内を隠すことができます。上部には透明なガラスを使っているので、閉めた状態でも空間が広く感じられます。


キッチンからリビング全体が見渡せるため、作業をしながらお子さまとコミュニケーションをとることができます。施主さまからは「洗い物をしていてもリビングの様子がよく見え、子供の様子が常にわかるので安心です」とのお声をいただきました。

ダイニング側の収納の一部に、デスクスペースを設けました。デスクを使うときは、扉を両サイドに開いて収納します。使わないときは扉を閉じて、リビングをすっきりと保つことができます。
キッチン




従来の個室型で閉鎖的だったキッチンを、リビング全体を見渡せる開放的な対面式へと一新しました。美しい曲線を描く造作のキッチンカウンターは、空間の中心となるシンボリックな存在。カウンター下の縦方向の木目が、間接照明の光をやさしく反射し、温もりと上質感が調和する心地よい空間を生み出しています。

キッチンには、使い勝手と美しさを兼ね備えたLIXIL「シエラ」を採用しました。収納棚には、上質な質感と機能性が魅力のカウンタータイプ「リシェル」を選びました。また、カウンター上の窓には、転落防止のための手すりポールを設置し、安全面にも配慮しています。


コンロや調理家電の棚は、リビング側から見えない位置に配置し、すっきりとした空間を保つよう工夫しています。
吊り戸棚には、ご主人こだわりのお酒コレクションを収納。ブラックスモークの扉がほどよい重厚感を添え、大人の趣味にふさわしい上質な雰囲気を演出しています。

キッチンと洗面室を一直線にレイアウトすることで、家事動線をスムーズに設計。キッチンから洗濯機、浴室までの距離を短くすることで、調理や片付けをしながら洗濯や入浴の準備も効率よくこなせる、忙しい毎日にうれしい間取りです。

家事動線に加え、家全体を横断する風の通り道も設計しています。窓を開けるだけで、スムーズに換気を行えるよう配慮しています。
手洗い・トイレ


廊下から直接アクセスできる場所に手洗いスペースを設け、来客時にも気兼ねなく使えるよう配慮しました。丸型ミラーや手洗いボウルにはホテルライクなデザインを採用し、機能性とともに、空間全体に洗練された上質感を演出しています。
トイレ本体は、清掃性とデザイン性を兼ね備えたLIXIL「プレアスLS」。トイレ奥は横から出し入れできる収納スペース。正面から棚が見えない設計ですっきりした空間に。木目調の壁面とダウンライトが奥行きを感じさせ、ゆとりある空間を演出。
バス・洗面室


広々とした横長洗面台で、家族みんながゆったり身支度できる空間を実現。大理石のような高級感あふれるカウンターは、周囲の色調と調和しながら上質な雰囲気を醸し出しています。洗面カウンターと鏡付き収納の間には横長の窓を設け、換気性能を高めつつ自然光をたっぷり取り込む設計に。明るく快適な洗面スペースが広がります。


バスはLIXIL「リノビオV」。浴室乾燥機能付き。
トレーニングルーム

ご主人の趣味である楽器演奏やトレーニング専用の部屋。床には遮音シートを敷き、二重窓により防音性も確保しています。
収納

玄関には、ベビーカーが収納できる奥行きのあるシューズクローゼットを設計しています。棚板は稼働式で、追加することも可能。

廊下の各所に大容量の収納スペースを設けています。ウォーターサーバーのボトルやトイレットペーパーなど、かさばるストック品もすっきり収納可能です。扉は天井までの高さを確保しており、閉じることで空間がすっきりと見えるデザインになっています。
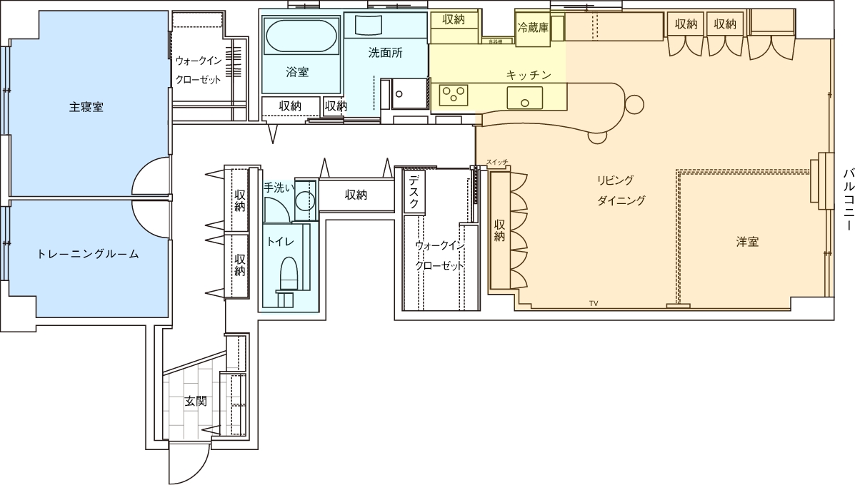
Before / After 平面図
Before

After

施主様の声
「ホテルライク」という私たちの希望を見事に形にしていただき、大変満足しています。落ち着いたトーンとアクセントカラーのバランスが絶妙で、空間全体が一気に洗練された印象になりました。さらに、使い勝手を考慮した動線の工夫や、子育てを意識したアイデアが随所に取り入れられており、日々の暮らしの快適さはもちろん、家事の効率も格段に向上しました。
親身になって相談に乗っていただき、意見の相違や細かな要望にも丁寧に対応してくださったおかげで、終始安心してお任せすることができました。これからも、信頼できる住まいのパートナーとして末永くお付き合いさせていただければと思っています。


担当:渡辺 麗



